Havuz ve Arıtma Teknolojileri

sağlıklı yaşam, temiz suda başlar.

0-35 m2

40-60 m2

160-200 m2

300-350 m2

1250 m2 +

normlarında

kısa süre için size özel

2.968 Euro Peşin / 1.999 Euro karşılığı TL Barter çeki fırsatı ile

​

bu yaza herkes havuz keyfinde olacak

​

Yukarıdaki fiyatlar EGE Bölgesi için geçerlidir.

Lütfen diğer bölgeler için brokerımızdan fiyat teklifi alınız 

İş Akışı

​

Proje Sahibi tarafından yapılacaklar

Planan Havuzun 

  • Tasarlanan Şeklinin tarafımıza teslim eder. örn. dikdörtgen, yuvarlak veya özel tasarım vb.
  • Tasarlanan derinlik bilgilerini tarafımıza teslim eder.

​

​

​

​

​

​

​

​

​

​

​

​

​

​

​

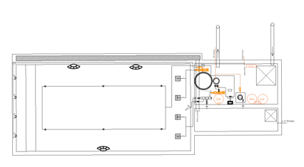
  • Tarafımızdan Proje standartlara göre revize edilip Proje sahibine teslim edilir (Mimari Projedeki Denge Havuzu ve Makine Dairesi plan ve kesitleri ile tarafımızdan teslim edilir).
  • Proje Sahibi tarafımızdan mimarı olarak onaylanmış Projenin inşaat işlerini tamamlar.
  • Aşağıda belirtilen tarafımızdan projelendirilmiş makina dairesi ve dengeleme havuzunu tamamlar ve tarafımıza teslim eder.
  • Proje Sahibi tarafından tamamlanan Makina dairesine kadar aşağıda belirtilen enerjiyi Proje sahibi getirir ve Makine Dairesinin aydınlatmasını tamamlar.
  • Proje Sahibi Denge Havuzu dolumu için şebeke suyunun getirilmesi tamamlar.
  • Proje Sahibi tarafından Rögora atılacak Pis Su Makina dairesinden Rögara kadar taşınır.

0-35 m2 havuz için teknik sınırlar

  • En az talep edilen enerji
  • Havuz derinliği en çok 
  • Makine dairesi derinliği en az

​

5 KW / Trifaze    

150 cm

200 cm

Tarafımızdan standart olarak kullanılan 

Mekanik ve Elektrik teçhizat listesi :

Yukarıdaki Fiyata dahil olmayan Projenize uygulanabilecek ekstra Havuz aksesuarlarını aşağıda bulabilirsiniz.

Fiyat Bilgisi için brokarınız ile iletişime geçiniz 

1.Otomatik kontröllü PH-Redox Regülatörü ve Kimyasal Klor ile Asit Dozaj Pompa Sistemi

Bu aksesuar ile havuz suyunun değerleri düzenli kontrol altında tutulur ve otomatik olarak ihtiyaç olan dozlamayı yönetir. Böylelikle daha sağlıklı ve daha kaliteli havuz suyuna sahip olunur.

​

Firmamızca bütün havuz modelleri için kesinlikle tavsiye edilir.

2.Çöktürücü Dozaj Pompası

Filtrasyon sisteminin askıda kalan zerrecikler partiküllerin küme halinde filtrenin üst tabakasında tutundurulmasını sağlar.

Buda havuz suyunun daha berrak olmasını sağlar.

3.Ozonlama Sistemi

Ozonlama Sistemi dezenfeksiyonun gücünü artırır ve kimyasal olarak kullanılan klorun tüketim miktarını azaltır. Özellikle bağlı klor dediğimiz klorun yan ürünleri ve tehlikeli maddeleri okside ederek bertaraf eder.

Ayrıca Klorun kanserojen etkiside ortadan kaldırılmış olur.

Buda insan sağlığı için çok önemlidir.

4.Tuz - Klor Jeneratörü

Havuz suyunun dezenfeksiyonunda kullanılan klor ürünleri genelde sıvı veya toz halindedir. Bunların hiçbiri %100 klor içermemekte, %90’lık olan klor bileşimindeki olan granül tipleri ise suya kolay karışamamaktadır. Örneğin sıvı klorun içeriğinde bulunan klor yüzdesi %10 ila %12 aralığındadır ve kalan %85 ila %90 arası diğer maddeler örneğin kostik içermektedir. Bu yan ürünler suya zarar verdiği gibi PH’da yükseltmekte ve havuz suyunun bulanıklığına sebep olur. Tuz - Klor Jeneratörü doğal tablet tuzundan %100’lük gaz klor üreterek hem saf klor vermekte, hemde suyun PH’ını yükseltmeden suyun berraklığına yardımcı olur.

​

Buda insan sağlığı için çok önemlidir. Ayrıca Havuzun dezenfeksiyonu için harcanan zamanı ve işletme giderlerini de önemli miktarda azalmasına yardımcı olur. Ayrıca Klorun kanserojen etkiside ortadan kaldırılmış olur.

Buda insan sağlığı için çok önemlidir.

5.Havalandırma Sistemi

Makine Dairesinde kullanılan ve/veya depolanan kimyasal maddelerin ortaya çıkan gazlarını makina dairesine hapsolduğu için son kullanıcı veya operatör makine dairesine girdiğinde kirli havaya maruz kalır.

Oksijeni az olan bu havada insan sağlığı için uygun olmadığı gibi çalışma verimliliğinide azaltır. Ayrıca bütün makine ve elektrik panosu içerisindeki aksesuarlara zarar verir. Bu sistem kurulması ile panodaki zaman rölesi ile belli zamanlarda devreye girerek söz konusu birikmiş olan kirli havayı makine dairesi dışına düzenli atılması sağlanılır.

6.Uzaktan Kumanda Sistemi

Şelale, jakuzi ve aydınlatma sistemleri gibi aksesuarların çalıştırılması için makine dairesine girmeden radyo frekansı ile uzaktan işletilmesi sağlanır.

7.Otomatik Havuz Robotu

Havuzun dibinde ve/veya duvarlarında biriken toz, plankton vb. maddeleri temizlemek amacı ile süpürge sistemi kullanılır. Bu sistem manuel olması halinde operatör tarafından sürekli aynı kalite ve özenle yapılması kısa sürelidir. özellikle duvarların temizlenmesi çok daha zordur. Otomatik Havuz Robotu ile bu handikap ortadan kaldırılır.

Buda daha temiz ve kolay bir süpürme işlemeni sağlar.

8.Su Perdesi Şelalesi

Genellikle dekoratif amaçlı kullanılan özel mimari detaylar da tercih edilen bir sistemdir. İnsan için su sesinin dinlendirici özelliği olması sebebi ile tercih edilir.

9.Gizli Su Perdesi Şelalesi

Dekoratif amaçlı havuzun mimari projesine göre yerleştirilen bir sistemdir. Özellikle ışıklandırma ve su sesinin insan üzerindeki dinlendirici özelliğinden faydalanmak için tercih edilir.

10.Jakuzi

Proje sahibinin Havuz mimari detaylarında kullanılması halinde kullanılan dekoratif ve rahatlatıcı bir özelliktir. Jakuzi detaylarında masaj özelliğide bulunduğu için kullanıcı tarafından tercih edilir.